マンション
【大阪市/マンションリフォーム】変化を楽しむ 終の棲家のリノベーション
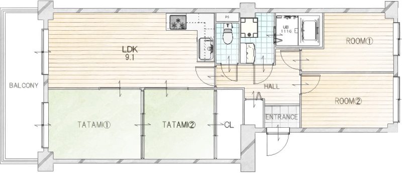
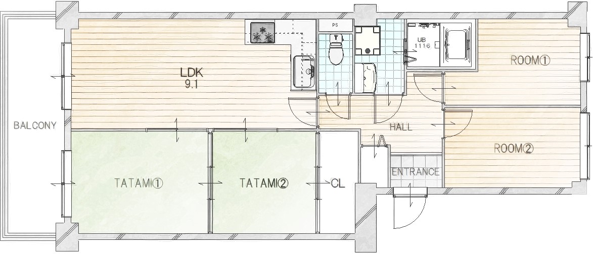
ROOM PLAN
DATA
-
-
- 所在地
- 大阪市
-
- 構造
- RC造
-
-
-
- 築年数
- 36年
-
- リフォーム面積
- 69.63㎡
-
-
-
- 工期
- 2か月
-
- リフォーム費用
- 1100万円
-
-
-
- リフォーム部位
- フルリノベーション
-
BEFORE
COMMENT
大阪市/マンションリフォーム
この街で、この家で、最期まで住み続ける。
終の棲家のリノベーション。
昨今は住まい方も家や家族によって多様化してきている中、リフォーム時期をむかえる住まいは4人家族を想定した型にはまった間取りばかり。そこで私たちは、住む人の視点に立ち、間取りの抜本改革を行い、リフォーム・リノベーションで「暮らし方そのものを変えたい」という思いから、コンセプトモデルハウスを作りました。従来の間取りに捉われない、趣味と暮らしを楽しむ「ふたり暮らしの住まい」です。
2人で楽しく。
家族や友人が訪ねてきても楽しいように。
リビングは最小限に、個室と収納はゆとりをもって。
玄関はシューズクロークとベンチスペースを設けたゆったり仕様。正面には無垢の突板を壁一面に貼り、家族やお客様をおもてなし。
LDKは収納・導線を大事にし、ダイニングとの導線を取りやすくした配置のキッチン、カップボードの並びには壁一面、家事・パソコン・子どもや孫が勉強したりとフレキシブルな使い方が可能なカウンター収納を設置。また、リビングには青山の考えるオリジナル収納「LiviiRe(リビーレ)」をつくり、リビングと目線が揃う小上がり式の和室コーナーは床下がすべて収納です。
寝室は壁掛けTVの為の壁や、インナーサッシ、集中できる半個室・収納付の書斎スペースを設けてシンプルながら使い勝手のいい場所へ。
洗面所には収納・物干し、トイレには手洗いカウンター、お風呂は一坪サイズ、とバリアフリーで快適なゆとりのある水回りや、ウォークインクローゼットも設けられ、置き家具のいらないすっきりとした生活へ。
様々な空間へのこだわりはもちろん、無垢のフロアや珪藻土などの健康に配慮した素材、地球にやさしい高気密・高断熱の省エネ性能など細部にまでこだわったモデルハウスになりました。

























