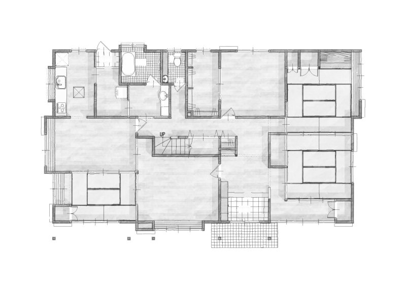
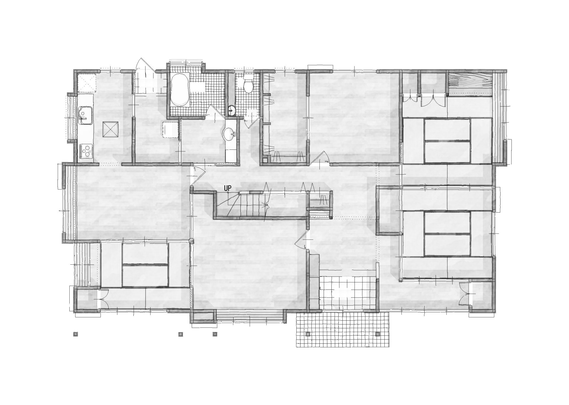
TOPリフォーム実例集【藤井寺市/戸建てリフォーム】回遊できるキッチンと広い人工芝のお庭で、2世帯が楽しく快適に過ごせるお住まい 戸建て 【藤井寺市/戸建てリフォーム】回遊できるキッチンと広い人工芝のお庭で、2世帯が楽しく快適に過ごせるお住まい 次前 ROOM PLAN1FBEFORE1FAFTER2FBEFORE2FAFTER DATA 所在地 藤井寺市 構造 木造 築年数 30年 リフォーム面積 193.8㎡ 工期 5ヶ月 リフォーム費用 3,040万円 リフォーム部位 1階・2階室内改装、外装、外構 BEFORE COMMENT藤井寺市/戸建てリフォーム 実家に戻ることになり、2世帯が生活しやすい間取りに変更しようとリフォームをすることにされたT様。LDKは家族みんなが集まってもゆったり過ごせる広々とした空間に。キッチンは作業がしやすい回遊できるアイランドキッチンにしました。さらに人数が多いと大変な洗濯も、室内物干しバーや衣類乾燥機の乾太くん、スロップシンクを備え付けたランドリースペースで家事ラクな仕様に。ランドリースペース~ウォークインクローゼット~寝室が繋がっているので、動線もスムーズです。他にもお掃除ロボットが収納できる物入や、たっぷり容量のあるパントリーなど収納にもこだわり、すっきり暮らしていただけます。外には、ダイニングから繋がるウッドデッキと、BBQができるタイルデッキを造り付け、庭にはお子様が目いっぱい走り回れるように人工芝も敷きこみました。お家の中も外も家族みんなが楽しく過ごせるお住まいが完成しました。 KEYWORDS戸建てキッチン壁紙シンプル洗面築25年以上〜築50年未満浴室タイル100㎡以上二世帯住宅トイレ廊下照明・間接照明省エネ1500万以上グリーン階段LDKオリジナル家具北欧スタイル洋室暮らしやすい・住みやすいニッチ癒し・くつろぎ子供部屋収納家事ラク玄関機能的内装ワークスペース外壁子育て外構・エクステリア間取り変更 その他のリフォーム実例集【大阪市/マンションリフォーム】個室もしっかり、LDKはのびやかに。角部屋を最大限に活かす住まい大阪市 Y様邸【大阪市/マンションリフォーム】「夫婦それぞれの暮らし方」60歳からの全面リフォーム大阪市 U様邸【大阪市/マンションリフォーム】暮らしやすさと心地よさを両立したジャパンディ空間T様邸【八尾市/戸建てリフォーム】定年を迎えて向き合った「これからの住まい」T様邸 リフォーム実例集一覧へ戻る 無料お見積もりはこちら
戸建て 【藤井寺市/戸建てリフォーム】回遊できるキッチンと広い人工芝のお庭で、2世帯が楽しく快適に過ごせるお住まい 次前 ROOM PLAN1FBEFORE1FAFTER2FBEFORE2FAFTER DATA 所在地 藤井寺市 構造 木造 築年数 30年 リフォーム面積 193.8㎡ 工期 5ヶ月 リフォーム費用 3,040万円 リフォーム部位 1階・2階室内改装、外装、外構 BEFORE COMMENT藤井寺市/戸建てリフォーム 実家に戻ることになり、2世帯が生活しやすい間取りに変更しようとリフォームをすることにされたT様。LDKは家族みんなが集まってもゆったり過ごせる広々とした空間に。キッチンは作業がしやすい回遊できるアイランドキッチンにしました。さらに人数が多いと大変な洗濯も、室内物干しバーや衣類乾燥機の乾太くん、スロップシンクを備え付けたランドリースペースで家事ラクな仕様に。ランドリースペース~ウォークインクローゼット~寝室が繋がっているので、動線もスムーズです。他にもお掃除ロボットが収納できる物入や、たっぷり容量のあるパントリーなど収納にもこだわり、すっきり暮らしていただけます。外には、ダイニングから繋がるウッドデッキと、BBQができるタイルデッキを造り付け、庭にはお子様が目いっぱい走り回れるように人工芝も敷きこみました。お家の中も外も家族みんなが楽しく過ごせるお住まいが完成しました。 KEYWORDS戸建てキッチン壁紙シンプル洗面築25年以上〜築50年未満浴室タイル100㎡以上二世帯住宅トイレ廊下照明・間接照明省エネ1500万以上グリーン階段LDKオリジナル家具北欧スタイル洋室暮らしやすい・住みやすいニッチ癒し・くつろぎ子供部屋収納家事ラク玄関機能的内装ワークスペース外壁子育て外構・エクステリア間取り変更 その他のリフォーム実例集【大阪市/マンションリフォーム】個室もしっかり、LDKはのびやかに。角部屋を最大限に活かす住まい大阪市 Y様邸【大阪市/マンションリフォーム】「夫婦それぞれの暮らし方」60歳からの全面リフォーム大阪市 U様邸【大阪市/マンションリフォーム】暮らしやすさと心地よさを両立したジャパンディ空間T様邸【八尾市/戸建てリフォーム】定年を迎えて向き合った「これからの住まい」T様邸 リフォーム実例集一覧へ戻る