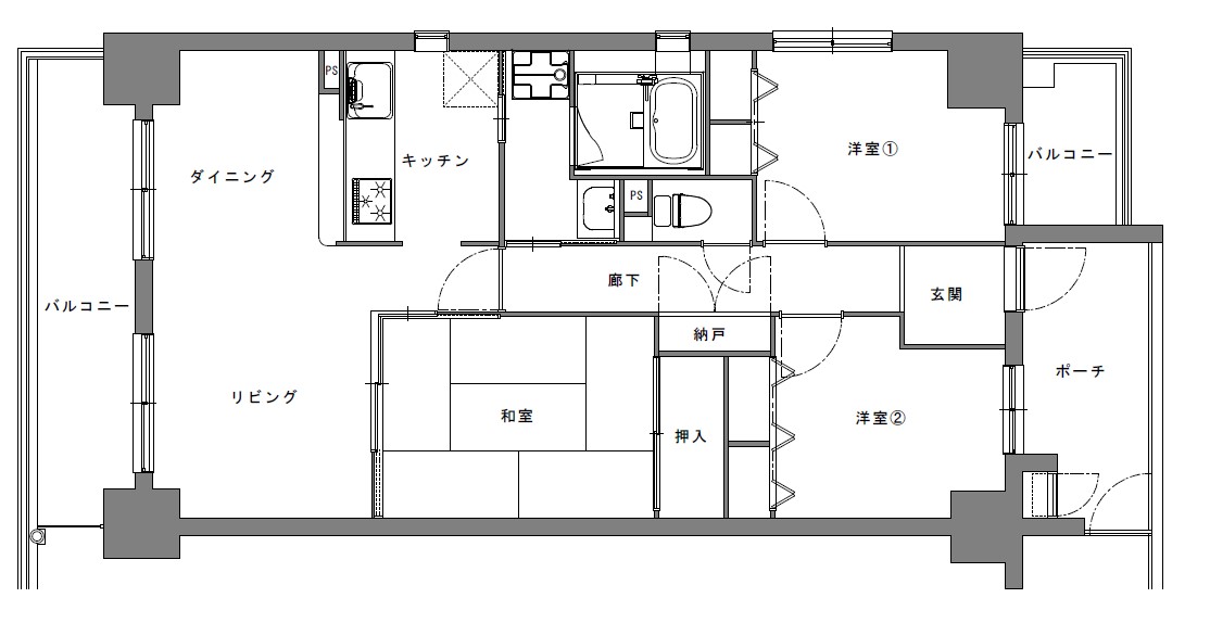
TOPリフォーム実例集【大阪府/マンションリフォーム】こだわり収納が光る住まい マンション 【大阪府/マンションリフォーム】こだわり収納が光る住まい 次前 ROOM PLANBEFOREAFTER DATA 所在地 大阪市 構造 SRC 築年数 28年 リフォーム面積 70㎡ 工期 2ヵ月 リフォーム費用 870万円 リフォーム部位 全面 BEFORE COMMENT大阪府/マンションリフォーム 古い設備の取替と収納をもっと増やしたいとのご希望だったので、各部屋のものの量を確認して、それに合う収納を時間をかけてご提案させていただきました。 リビングにはW2400あるフロートタイプのTV台を設置し、上部には間接照明を取付、ホワイトオークの床とスモークグレーの収納扉とガラスで、シックで上質なリビング空間に。 WICは収納量を確保しながらも、息子様の帰省時の寝泊りするスペースをつくることを同時に叶える事ができました。 収納を増やしたことで表にでていたものが片付き、ゆとりのある寛ぎ空間が完成しました。 KEYWORDS壁紙キッチン断熱シンプルマンション洗面800〜1000万70㎡以上〜100㎡未満築25年以上〜築50年未満ファミリー浴室モダントイレ照明・間接照明廊下窓・室内窓・ドアオリジナル家具LDK洋室暮らしやすい・住みやすい和室収納子供部屋家事ラク玄関機能的内装間取り変更 その他のリフォーム実例集【大阪市/マンションリフォーム】個室もしっかり、LDKはのびやかに。角部屋を最大限に活かす住まい大阪市 Y様邸【大阪市/マンションリフォーム】「夫婦それぞれの暮らし方」60歳からの全面リフォーム大阪市 U様邸【大阪市/マンションリフォーム】暮らしやすさと心地よさを両立したジャパンディ空間T様邸【八尾市/戸建てリフォーム】定年を迎えて向き合った「これからの住まい」T様邸 リフォーム実例集一覧へ戻る 無料お見積もりはこちら
マンション 【大阪府/マンションリフォーム】こだわり収納が光る住まい 次前 ROOM PLANBEFOREAFTER DATA 所在地 大阪市 構造 SRC 築年数 28年 リフォーム面積 70㎡ 工期 2ヵ月 リフォーム費用 870万円 リフォーム部位 全面 BEFORE COMMENT大阪府/マンションリフォーム 古い設備の取替と収納をもっと増やしたいとのご希望だったので、各部屋のものの量を確認して、それに合う収納を時間をかけてご提案させていただきました。 リビングにはW2400あるフロートタイプのTV台を設置し、上部には間接照明を取付、ホワイトオークの床とスモークグレーの収納扉とガラスで、シックで上質なリビング空間に。 WICは収納量を確保しながらも、息子様の帰省時の寝泊りするスペースをつくることを同時に叶える事ができました。 収納を増やしたことで表にでていたものが片付き、ゆとりのある寛ぎ空間が完成しました。 KEYWORDS壁紙キッチン断熱シンプルマンション洗面800〜1000万70㎡以上〜100㎡未満築25年以上〜築50年未満ファミリー浴室モダントイレ照明・間接照明廊下窓・室内窓・ドアオリジナル家具LDK洋室暮らしやすい・住みやすい和室収納子供部屋家事ラク玄関機能的内装間取り変更 その他のリフォーム実例集【大阪市/マンションリフォーム】個室もしっかり、LDKはのびやかに。角部屋を最大限に活かす住まい大阪市 Y様邸【大阪市/マンションリフォーム】「夫婦それぞれの暮らし方」60歳からの全面リフォーム大阪市 U様邸【大阪市/マンションリフォーム】暮らしやすさと心地よさを両立したジャパンディ空間T様邸【八尾市/戸建てリフォーム】定年を迎えて向き合った「これからの住まい」T様邸 リフォーム実例集一覧へ戻る