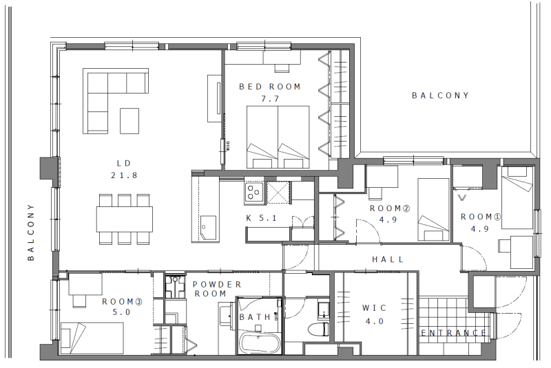
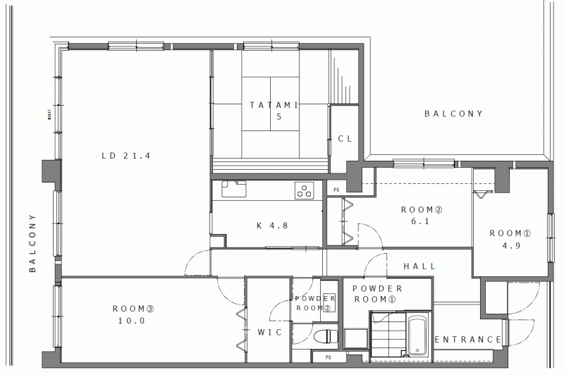
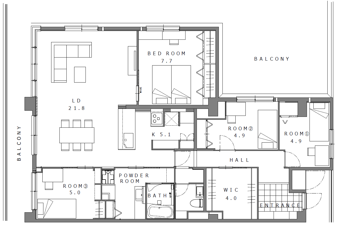
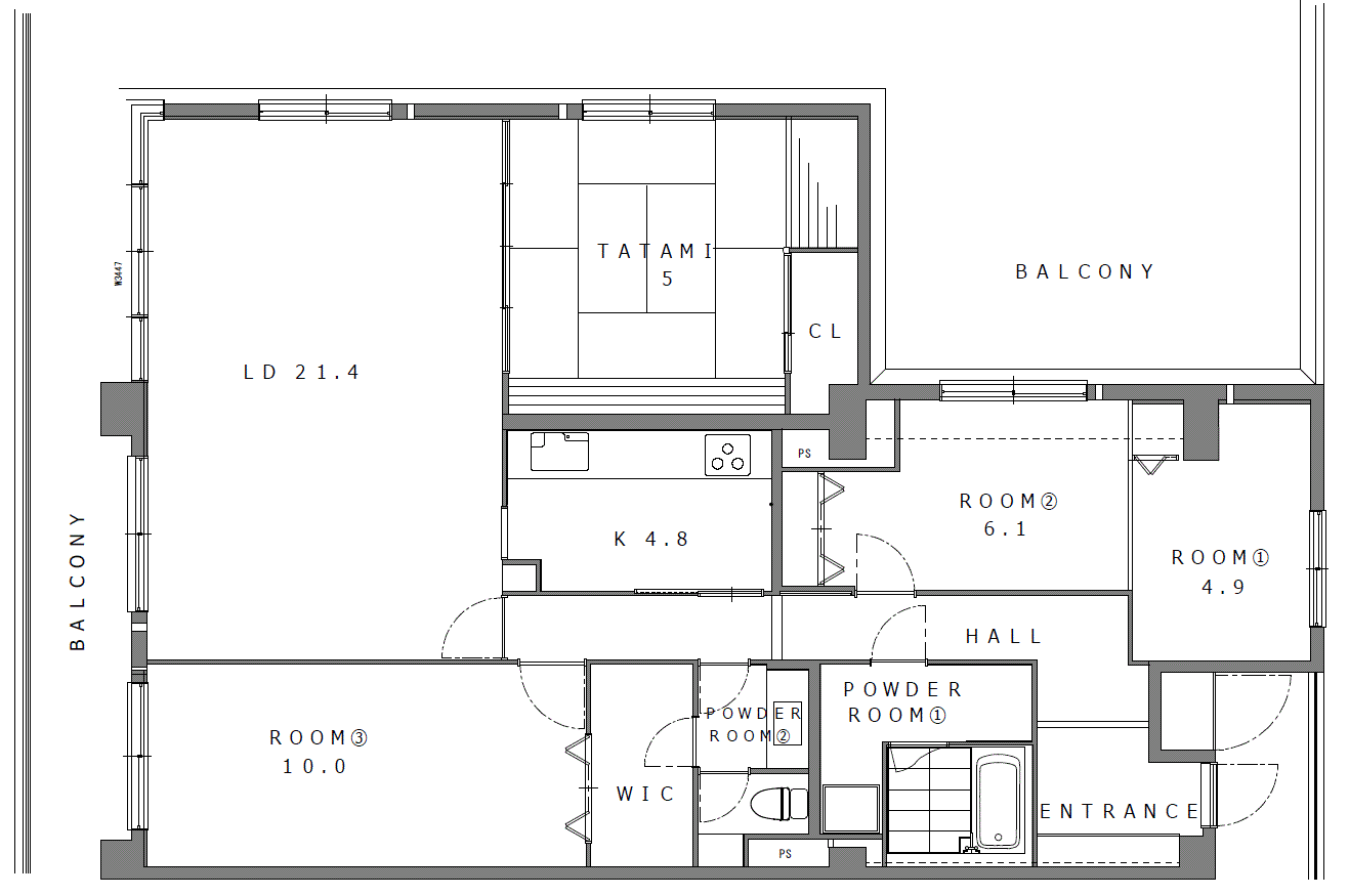
TOPリフォーム実例集【大阪市/マンションリフォーム】5人でも快適に!マンションフルオーダーリフォーム マンション 【大阪市/マンションリフォーム】5人でも快適に!マンションフルオーダーリフォーム 次前 ROOM PLANBEFOREAFTER DATA 所在地 大阪市 構造 RC造 築年数 33年 リフォーム面積 129㎡ 工期 4ヶ月 リフォーム費用 1200万 リフォーム部位 フルリノベーション COMMENT大阪市/マンションリフォーム 家族5人でも快適に暮らせるように、広めの中古マンションを購入されたY様。 それぞれの寝室を設けながらも収納もたくさん確保できること、そして家事の効率化短縮化も希望のひとつでした。 今回のリフォームでは、デスク・ベッドも置ける子供室を3室、広々と使える主寝室を設けて、また各部屋ごとにたっぷり収納も設けてゆとりのある空間をご提案。 水まわりも1418サイズの人工大理石のお風呂や手洗いのあるトイレなど設備にもこだわって、5人でも窮屈に感じずに生活ができるようにしています。特に洗面所はがらっと位置を替え、贅沢にスペースをとっています。今人気の衣類乾燥機「乾太くん」を設置して家事もラクチンに、余裕をもって行える奥様のお気に入りのスペースとなりました。 収納をしっかり作ることで5人分の荷物もすっきりと収める事が出来るため、お客様を招くときもストレスになりません。 床のホワイトを基調にグレーやブラックをアクセントに取り入れ、スタイリッシュな空間に。カラーコーディネートや照明などのインテリアデザインはもちろん、収納や家事導線にもこだわった、理想のマイホームを実現されました。 5人家族でもゆったりと過ごせるLDK空間へ大変身です! STAFF担当スタッフ 戸村 -tomura- READ MORE KEYWORDSキッチンシンプルホテルライクマンション洗面築25年以上〜築50年未満ファミリー浴室トイレ1000〜1500万100㎡以上廊下照明・間接照明LDKラグジュアリーおもてなし洋室暮らしやすい・住みやすい癒し・くつろぎ収納玄関内装機能的間取り変更 その他のリフォーム実例集【大阪市/マンションリフォーム】個室もしっかり、LDKはのびやかに。角部屋を最大限に活かす住まい大阪市 Y様邸【大阪市/マンションリフォーム】「夫婦それぞれの暮らし方」60歳からの全面リフォーム大阪市 U様邸【大阪市/マンションリフォーム】暮らしやすさと心地よさを両立したジャパンディ空間T様邸【八尾市/戸建てリフォーム】定年を迎えて向き合った「これからの住まい」T様邸 リフォーム実例集一覧へ戻る 無料お見積もりはこちら
マンション 【大阪市/マンションリフォーム】5人でも快適に!マンションフルオーダーリフォーム 次前 ROOM PLANBEFOREAFTER DATA 所在地 大阪市 構造 RC造 築年数 33年 リフォーム面積 129㎡ 工期 4ヶ月 リフォーム費用 1200万 リフォーム部位 フルリノベーション COMMENT大阪市/マンションリフォーム 家族5人でも快適に暮らせるように、広めの中古マンションを購入されたY様。 それぞれの寝室を設けながらも収納もたくさん確保できること、そして家事の効率化短縮化も希望のひとつでした。 今回のリフォームでは、デスク・ベッドも置ける子供室を3室、広々と使える主寝室を設けて、また各部屋ごとにたっぷり収納も設けてゆとりのある空間をご提案。 水まわりも1418サイズの人工大理石のお風呂や手洗いのあるトイレなど設備にもこだわって、5人でも窮屈に感じずに生活ができるようにしています。特に洗面所はがらっと位置を替え、贅沢にスペースをとっています。今人気の衣類乾燥機「乾太くん」を設置して家事もラクチンに、余裕をもって行える奥様のお気に入りのスペースとなりました。 収納をしっかり作ることで5人分の荷物もすっきりと収める事が出来るため、お客様を招くときもストレスになりません。 床のホワイトを基調にグレーやブラックをアクセントに取り入れ、スタイリッシュな空間に。カラーコーディネートや照明などのインテリアデザインはもちろん、収納や家事導線にもこだわった、理想のマイホームを実現されました。 5人家族でもゆったりと過ごせるLDK空間へ大変身です! STAFF担当スタッフ 戸村 -tomura- READ MORE KEYWORDSキッチンシンプルホテルライクマンション洗面築25年以上〜築50年未満ファミリー浴室トイレ1000〜1500万100㎡以上廊下照明・間接照明LDKラグジュアリーおもてなし洋室暮らしやすい・住みやすい癒し・くつろぎ収納玄関内装機能的間取り変更 その他のリフォーム実例集【大阪市/マンションリフォーム】個室もしっかり、LDKはのびやかに。角部屋を最大限に活かす住まい大阪市 Y様邸【大阪市/マンションリフォーム】「夫婦それぞれの暮らし方」60歳からの全面リフォーム大阪市 U様邸【大阪市/マンションリフォーム】暮らしやすさと心地よさを両立したジャパンディ空間T様邸【八尾市/戸建てリフォーム】定年を迎えて向き合った「これからの住まい」T様邸 リフォーム実例集一覧へ戻る