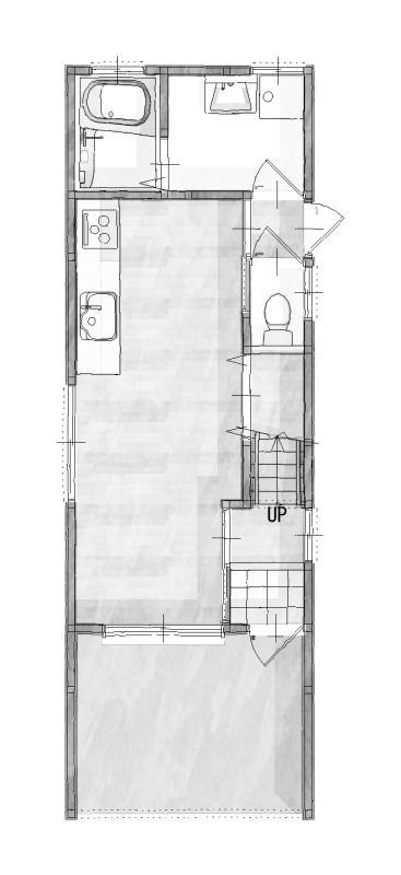
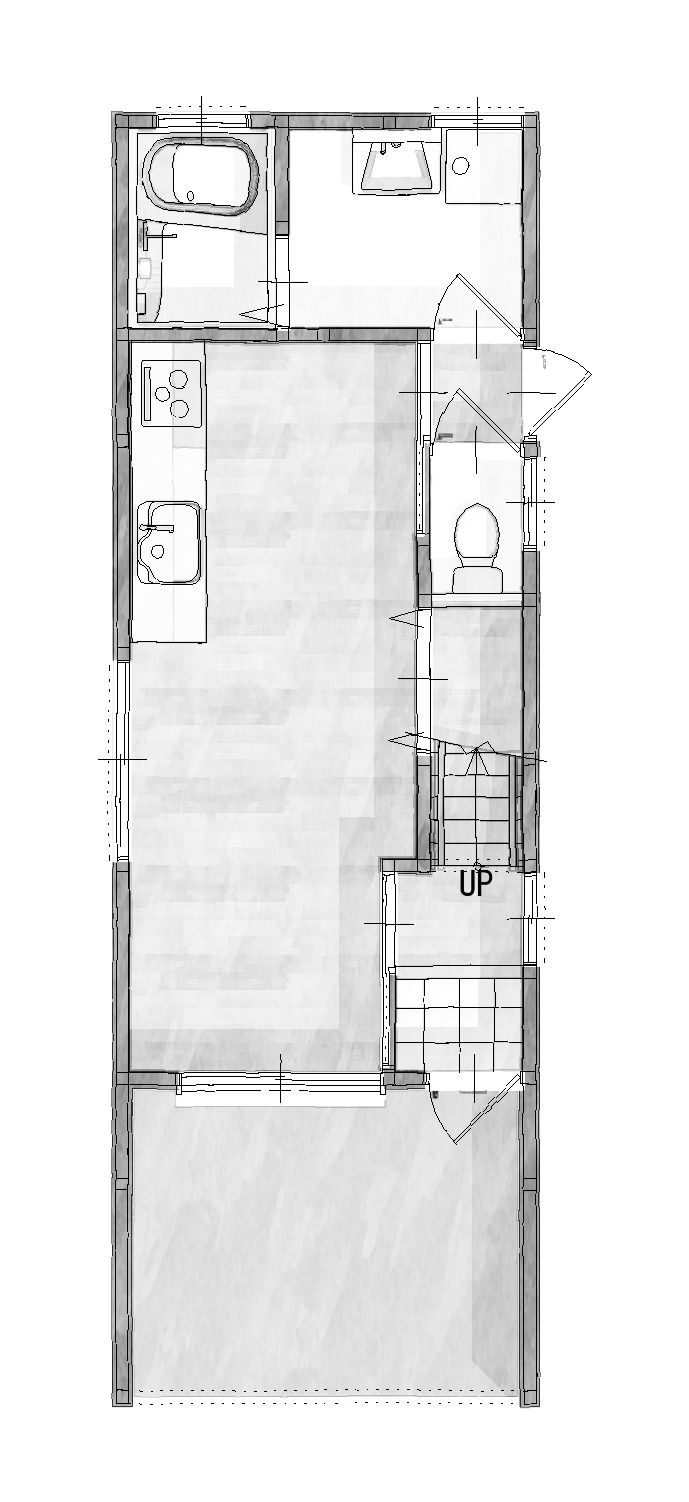
TOPリフォーム実例集【羽曳野市/戸建てリフォーム】コンパクトな暮らしに丁度いい 安心・安全な住まい 戸建て 【羽曳野市/戸建てリフォーム】コンパクトな暮らしに丁度いい 安心・安全な住まい 次前 ROOM PLAN1FBEFORE1FAFTER2FBEFORE2FAFTER DATA 所在地 羽曳野市 構造 木造 築年数 17年 リフォーム面積 74.4㎡ 工期 3ヶ月 リフォーム費用 1,000万円 リフォーム部位 全面改装 BEFORE COMMENT羽曳野市/戸建てリフォーム 築年数が経ち、雨漏れにも悩まされていたA様邸。雨漏れの修理はもちろん、家の不便も一気に解消するために全面改装をしました。元々は1階にLDKがあったのですが、スペースにも限りがあり暗さも感じていたので2階にLDKを移すことで、広さと明るさを確保しました。階段上の空間もオープンにして利用。冷蔵庫置き場も確保され、スッキリとしたLDKになりました。収納を1階にたっぷりとることで、生活スペースでは必要最低限の物で生活でき、すっきりとお過ごしいただけます。もちろん雨漏れの修理も行い、屋根や外壁もリフレッシュしました。外観は白を基調に明るいデザインに。屋根や外壁からの雨漏れの原因も取り除き、キレイになっただけでなく、家としての機能も改善されました。 KEYWORDS戸建てキッチン壁紙シンプル洗面築10年以上〜築25年未満ふたり暮らし70㎡以上〜100㎡未満トイレ1000〜1500万廊下階段LDK洋室暮らしやすい・住みやすい収納玄関内装機能的外壁屋根外構・エクステリア間取り変更 その他のリフォーム実例集【大阪市/マンションリフォーム】個室もしっかり、LDKはのびやかに。角部屋を最大限に活かす住まい大阪市 Y様邸【大阪市/マンションリフォーム】「夫婦それぞれの暮らし方」60歳からの全面リフォーム大阪市 U様邸【大阪市/マンションリフォーム】暮らしやすさと心地よさを両立したジャパンディ空間T様邸【八尾市/戸建てリフォーム】定年を迎えて向き合った「これからの住まい」T様邸 リフォーム実例集一覧へ戻る 無料お見積もりはこちら
戸建て 【羽曳野市/戸建てリフォーム】コンパクトな暮らしに丁度いい 安心・安全な住まい 次前 ROOM PLAN1FBEFORE1FAFTER2FBEFORE2FAFTER DATA 所在地 羽曳野市 構造 木造 築年数 17年 リフォーム面積 74.4㎡ 工期 3ヶ月 リフォーム費用 1,000万円 リフォーム部位 全面改装 BEFORE COMMENT羽曳野市/戸建てリフォーム 築年数が経ち、雨漏れにも悩まされていたA様邸。雨漏れの修理はもちろん、家の不便も一気に解消するために全面改装をしました。元々は1階にLDKがあったのですが、スペースにも限りがあり暗さも感じていたので2階にLDKを移すことで、広さと明るさを確保しました。階段上の空間もオープンにして利用。冷蔵庫置き場も確保され、スッキリとしたLDKになりました。収納を1階にたっぷりとることで、生活スペースでは必要最低限の物で生活でき、すっきりとお過ごしいただけます。もちろん雨漏れの修理も行い、屋根や外壁もリフレッシュしました。外観は白を基調に明るいデザインに。屋根や外壁からの雨漏れの原因も取り除き、キレイになっただけでなく、家としての機能も改善されました。 KEYWORDS戸建てキッチン壁紙シンプル洗面築10年以上〜築25年未満ふたり暮らし70㎡以上〜100㎡未満トイレ1000〜1500万廊下階段LDK洋室暮らしやすい・住みやすい収納玄関内装機能的外壁屋根外構・エクステリア間取り変更 その他のリフォーム実例集【大阪市/マンションリフォーム】個室もしっかり、LDKはのびやかに。角部屋を最大限に活かす住まい大阪市 Y様邸【大阪市/マンションリフォーム】「夫婦それぞれの暮らし方」60歳からの全面リフォーム大阪市 U様邸【大阪市/マンションリフォーム】暮らしやすさと心地よさを両立したジャパンディ空間T様邸【八尾市/戸建てリフォーム】定年を迎えて向き合った「これからの住まい」T様邸 リフォーム実例集一覧へ戻る