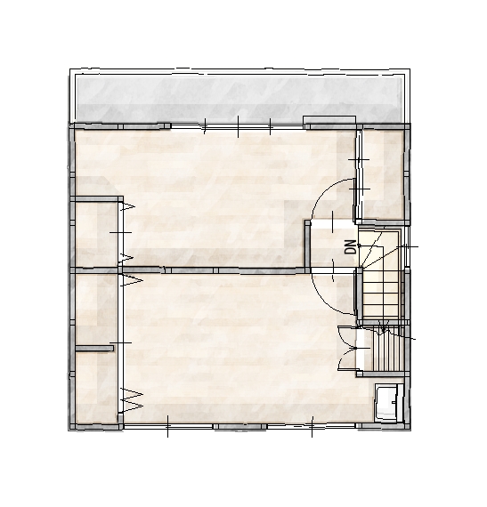
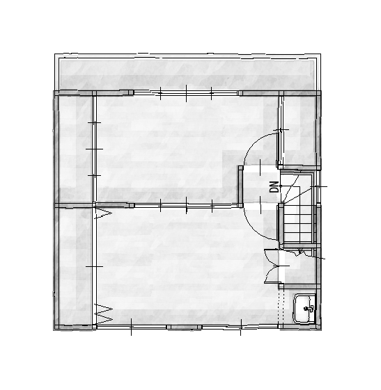
TOPリフォーム実例集【堺市/戸建てリフォーム】ご家族もワンちゃんも嬉しい機能が充実した住まい 戸建て 【堺市/戸建てリフォーム】ご家族もワンちゃんも嬉しい機能が充実した住まい 次前 ROOM PLAN1FBEFORE1FAFTER2FBEFORE2FAFTER DATA 所在地 堺市 構造 木造 築年数 40年 リフォーム面積 92.8㎡ 工期 5ヶ月 リフォーム費用 1,970万円 リフォーム部位 全面改装・外構・耐震補強・断熱 BEFORE COMMENT堺市/戸建てリフォーム 築年数が40年を過ぎ、耐震性に不安を感じていたM様。水廻りや外構など気になるところも増えてきたため、全面的に改装をされました。 まずは間取りプランと共に作成する補強計画を基に、屋根の軽量化・接合部の金物補強・新たに壁ができるところには基礎を新設し、構造的にも強く備えました。さらに万が一の時には地震の揺れを吸収する制振ダンパーも取付け、より安心なお住まいになりました。 もともとDKと和室2間があった1階の間取りは、LDKと洋室1部屋に変更。対面キッチンを実現しました。広くなったリビングには、斜めになっていた壁を利用したニッチやワンちゃんのケージ置場を設けました。また浴室は広さにこだわり、1坪サイズのユニットバスを設置。家の裏にはワンちゃんの遊び場としてウッドデッキを設けたり、ワンちゃんが自由に行き来できるペット用ドアが付いた室内扉を設けたり、ご家族もワンちゃんも嬉しいお住まいが完成しました。 お客様からの直筆メッセージ M様 お客様アンケートより リフォームのプランについて何度も時間をかけて話を聞いて頂いて感謝しています。 KEYWORDSナチュラル戸建てキッチン壁紙断熱洗面耐震バリアフリー70㎡以上〜100㎡未満築25年以上〜築50年未満ファミリートイレ廊下省エネ1500万以上窓・室内窓・ドア階段LDKペット洋室暮らしやすい・住みやすいニッチ和室収納玄関内装外壁屋根外構・エクステリア間取り変更 その他のリフォーム実例集【大阪市/マンションリフォーム】個室もしっかり、LDKはのびやかに。角部屋を最大限に活かす住まい大阪市 Y様邸【大阪市/マンションリフォーム】「夫婦それぞれの暮らし方」60歳からの全面リフォーム大阪市 U様邸【大阪市/マンションリフォーム】暮らしやすさと心地よさを両立したジャパンディ空間T様邸【八尾市/戸建てリフォーム】定年を迎えて向き合った「これからの住まい」T様邸 リフォーム実例集一覧へ戻る 無料お見積もりはこちら
戸建て 【堺市/戸建てリフォーム】ご家族もワンちゃんも嬉しい機能が充実した住まい 次前 ROOM PLAN1FBEFORE1FAFTER2FBEFORE2FAFTER DATA 所在地 堺市 構造 木造 築年数 40年 リフォーム面積 92.8㎡ 工期 5ヶ月 リフォーム費用 1,970万円 リフォーム部位 全面改装・外構・耐震補強・断熱 BEFORE COMMENT堺市/戸建てリフォーム 築年数が40年を過ぎ、耐震性に不安を感じていたM様。水廻りや外構など気になるところも増えてきたため、全面的に改装をされました。 まずは間取りプランと共に作成する補強計画を基に、屋根の軽量化・接合部の金物補強・新たに壁ができるところには基礎を新設し、構造的にも強く備えました。さらに万が一の時には地震の揺れを吸収する制振ダンパーも取付け、より安心なお住まいになりました。 もともとDKと和室2間があった1階の間取りは、LDKと洋室1部屋に変更。対面キッチンを実現しました。広くなったリビングには、斜めになっていた壁を利用したニッチやワンちゃんのケージ置場を設けました。また浴室は広さにこだわり、1坪サイズのユニットバスを設置。家の裏にはワンちゃんの遊び場としてウッドデッキを設けたり、ワンちゃんが自由に行き来できるペット用ドアが付いた室内扉を設けたり、ご家族もワンちゃんも嬉しいお住まいが完成しました。 お客様からの直筆メッセージ M様 お客様アンケートより リフォームのプランについて何度も時間をかけて話を聞いて頂いて感謝しています。 KEYWORDSナチュラル戸建てキッチン壁紙断熱洗面耐震バリアフリー70㎡以上〜100㎡未満築25年以上〜築50年未満ファミリートイレ廊下省エネ1500万以上窓・室内窓・ドア階段LDKペット洋室暮らしやすい・住みやすいニッチ和室収納玄関内装外壁屋根外構・エクステリア間取り変更 その他のリフォーム実例集【大阪市/マンションリフォーム】個室もしっかり、LDKはのびやかに。角部屋を最大限に活かす住まい大阪市 Y様邸【大阪市/マンションリフォーム】「夫婦それぞれの暮らし方」60歳からの全面リフォーム大阪市 U様邸【大阪市/マンションリフォーム】暮らしやすさと心地よさを両立したジャパンディ空間T様邸【八尾市/戸建てリフォーム】定年を迎えて向き合った「これからの住まい」T様邸 リフォーム実例集一覧へ戻る