K様 お客様アンケートより
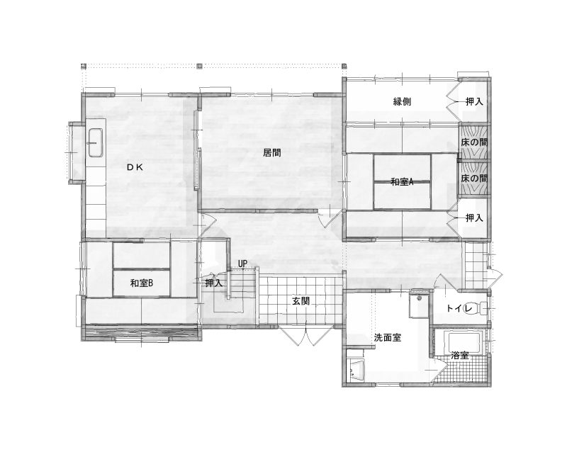
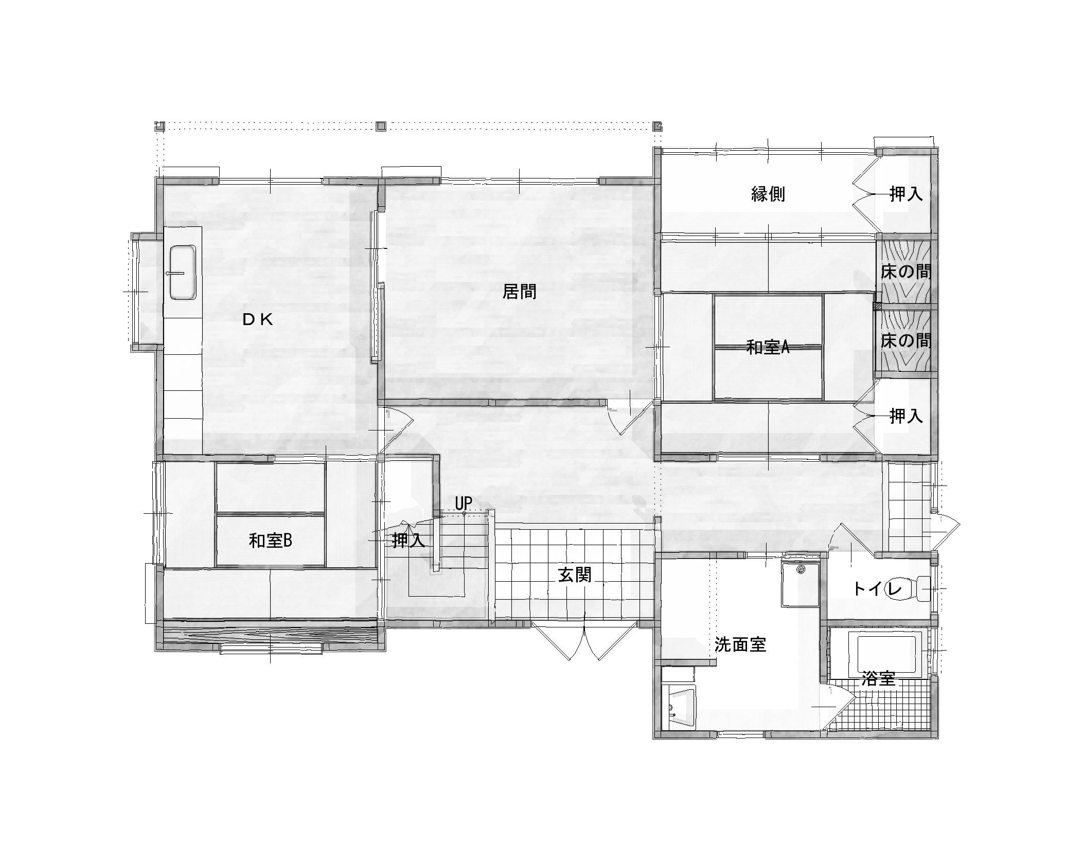
間取りをほぼ変更しないリフォームでしたが、まるで新築の家になったようで新鮮で快適に暮らすことができます。なにより何度もプランを考えなおしたり、職人さんの仕事を見せてもらって家の構造を知ることで、自分の家に今までよりずっと愛着を感じるようになり大切にしていこうと思います。
住みながらのリフォーム工事でしたが職人さんが毎回きれいに片づけて帰られるのには感心しました。こちらの何気ない質問にも丁寧に答えていただき、気さくに話ができてよかったです。営業担当の方は無理なプランを勧めるのではなく、こちらの希望をよく聴いていただきプランの変更にもすぐに対応して下さりました。スケジュールの連絡も早くて安心して工事を見守ることができたのも良かったと思います。
