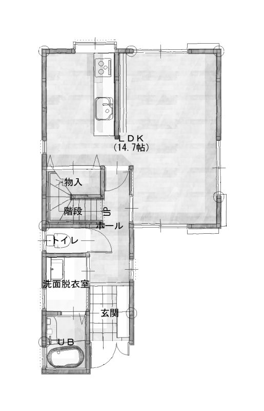
TOPリフォーム実例集【八尾市/戸建てリフォーム】白・黒・グレーでまとめた こだわりリビングのある新居 戸建て 【八尾市/戸建てリフォーム】白・黒・グレーでまとめた こだわりリビングのある新居 次前 ROOM PLAN1FBEFORE1FAFTER DATA 所在地 八尾市 構造 木造 築年数 21年 リフォーム面積 51.4㎡ 工期 2ヶ月 リフォーム費用 740万円 リフォーム部位 LDK・洗面・内容・外壁、屋根塗装 BEFORE COMMENT八尾市/戸建てリフォーム ご両親が引っ越されるため、ご実家を譲り受けリフォームされたA様。イメージをガラッと変え、新生活にぴったりのマイホームが完成しました。LDKは廊下の1畳分を部屋に取り込み、さらに対面キッチンの吊り戸を撤去することにより、少しの変化ですがぐっと広く感じられるようになりました。冷蔵庫置き場を作ったことでさらに見た目もすっきり。カラーコーディネートは全体的に白×グレーを基調に黒のアクセントを取り入れることで、シックな空間に仕上がりました。さらにニオイに敏感な愛猫ちゃんのために下地からやり替えており、見えないところにもこだわった家族みんなに優しいリフォームになりました KEYWORDSカフェ風戸建てキッチン壁紙洗面500〜800万50㎡以上〜70㎡未満築10年以上〜築25年未満ファミリートイレ廊下ペットLDK北欧スタイルペット洋室玄関内装外壁屋根子育て外構・エクステリア間取り変更 その他のリフォーム実例集【大阪市/マンションリフォーム】個室もしっかり、LDKはのびやかに。角部屋を最大限に活かす住まい大阪市 Y様邸【大阪市/マンションリフォーム】「夫婦それぞれの暮らし方」60歳からの全面リフォーム大阪市 U様邸【大阪市/マンションリフォーム】暮らしやすさと心地よさを両立したジャパンディ空間T様邸【八尾市/戸建てリフォーム】定年を迎えて向き合った「これからの住まい」T様邸 リフォーム実例集一覧へ戻る 無料お見積もりはこちら
戸建て 【八尾市/戸建てリフォーム】白・黒・グレーでまとめた こだわりリビングのある新居 次前 ROOM PLAN1FBEFORE1FAFTER DATA 所在地 八尾市 構造 木造 築年数 21年 リフォーム面積 51.4㎡ 工期 2ヶ月 リフォーム費用 740万円 リフォーム部位 LDK・洗面・内容・外壁、屋根塗装 BEFORE COMMENT八尾市/戸建てリフォーム ご両親が引っ越されるため、ご実家を譲り受けリフォームされたA様。イメージをガラッと変え、新生活にぴったりのマイホームが完成しました。LDKは廊下の1畳分を部屋に取り込み、さらに対面キッチンの吊り戸を撤去することにより、少しの変化ですがぐっと広く感じられるようになりました。冷蔵庫置き場を作ったことでさらに見た目もすっきり。カラーコーディネートは全体的に白×グレーを基調に黒のアクセントを取り入れることで、シックな空間に仕上がりました。さらにニオイに敏感な愛猫ちゃんのために下地からやり替えており、見えないところにもこだわった家族みんなに優しいリフォームになりました KEYWORDSカフェ風戸建てキッチン壁紙洗面500〜800万50㎡以上〜70㎡未満築10年以上〜築25年未満ファミリートイレ廊下ペットLDK北欧スタイルペット洋室玄関内装外壁屋根子育て外構・エクステリア間取り変更 その他のリフォーム実例集【大阪市/マンションリフォーム】個室もしっかり、LDKはのびやかに。角部屋を最大限に活かす住まい大阪市 Y様邸【大阪市/マンションリフォーム】「夫婦それぞれの暮らし方」60歳からの全面リフォーム大阪市 U様邸【大阪市/マンションリフォーム】暮らしやすさと心地よさを両立したジャパンディ空間T様邸【八尾市/戸建てリフォーム】定年を迎えて向き合った「これからの住まい」T様邸 リフォーム実例集一覧へ戻る