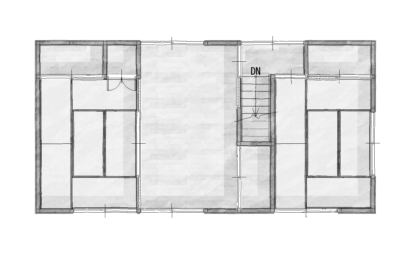
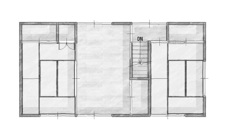
TOPリフォーム実例集【香芝市/戸建てリフォーム】ご実家で同居するため 母屋を子育てしやすいお住まいへ 戸建て 【香芝市/戸建てリフォーム】ご実家で同居するため 母屋を子育てしやすいお住まいへ 次前 ROOM PLAN1FBEFORE1FAFTER2FBEFORE2FAFTER DATA 所在地 香芝市 構造 木造 築年数 30年 リフォーム面積 134㎡ 工期 2.5ヶ月 リフォーム費用 1000万円 リフォーム部位 LDK・トイレ・洗面・UB・和室・洋室・廊下 BEFORE COMMENT香芝市/戸建てリフォーム ご実家で同居するため、リフォームをすることにしたM様。1階はご家族みんなで過ごしやすいように、ダイニングキッチンとリビングをつなげて広いLDKにしました。インテリアはナチュラルな色目でまとめて、明るい空間になりました。また、キッチン横から洗面脱衣室に入れるようにしたことで、家事動線もスムーズに。洗面脱衣室に新設した可動棚も便利にお使いいただいています。 2階は廊下の面積を広げ、キッズルームを新設。窓がなかったので寝室との間に室内窓を設け、採光と採風がとれるようにしました。可愛らしいイエローのアクセントクロスと、階段手すりの縦格子、白い室内窓が空間の良いアクセントになっています。お子様のお気に入りの場所が出来上がりました。 玄関ホールは既存の和の趣をそのままに、床を無垢のフローリングで貼替え、玄関収納をキレイに取替えました。 家全体は段差をなくしてバリアフリーにし、外窓の入れ替えや内窓をつけて断熱性能を上げることで、ご家族みんなが快適に過ごせるお住まいに生まれ変わりました。 KEYWORDSナチュラル壁紙戸建てキッチン断熱洗面バリアフリー築25年以上〜築50年未満ファミリー浴室トイレ1000〜1500万100㎡以上自然素材廊下窓・室内窓・ドアLDK洋室和室和スタイル暮らしやすい・住みやすい子供部屋玄関家事ラク内装子育て その他のリフォーム実例集【大阪市/マンションリフォーム】個室もしっかり、LDKはのびやかに。角部屋を最大限に活かす住まい大阪市 Y様邸【大阪市/マンションリフォーム】「夫婦それぞれの暮らし方」60歳からの全面リフォーム大阪市 U様邸【大阪市/マンションリフォーム】暮らしやすさと心地よさを両立したジャパンディ空間T様邸【八尾市/戸建てリフォーム】定年を迎えて向き合った「これからの住まい」T様邸 リフォーム実例集一覧へ戻る 無料お見積もりはこちら
戸建て 【香芝市/戸建てリフォーム】ご実家で同居するため 母屋を子育てしやすいお住まいへ 次前 ROOM PLAN1FBEFORE1FAFTER2FBEFORE2FAFTER DATA 所在地 香芝市 構造 木造 築年数 30年 リフォーム面積 134㎡ 工期 2.5ヶ月 リフォーム費用 1000万円 リフォーム部位 LDK・トイレ・洗面・UB・和室・洋室・廊下 BEFORE COMMENT香芝市/戸建てリフォーム ご実家で同居するため、リフォームをすることにしたM様。1階はご家族みんなで過ごしやすいように、ダイニングキッチンとリビングをつなげて広いLDKにしました。インテリアはナチュラルな色目でまとめて、明るい空間になりました。また、キッチン横から洗面脱衣室に入れるようにしたことで、家事動線もスムーズに。洗面脱衣室に新設した可動棚も便利にお使いいただいています。 2階は廊下の面積を広げ、キッズルームを新設。窓がなかったので寝室との間に室内窓を設け、採光と採風がとれるようにしました。可愛らしいイエローのアクセントクロスと、階段手すりの縦格子、白い室内窓が空間の良いアクセントになっています。お子様のお気に入りの場所が出来上がりました。 玄関ホールは既存の和の趣をそのままに、床を無垢のフローリングで貼替え、玄関収納をキレイに取替えました。 家全体は段差をなくしてバリアフリーにし、外窓の入れ替えや内窓をつけて断熱性能を上げることで、ご家族みんなが快適に過ごせるお住まいに生まれ変わりました。 KEYWORDSナチュラル壁紙戸建てキッチン断熱洗面バリアフリー築25年以上〜築50年未満ファミリー浴室トイレ1000〜1500万100㎡以上自然素材廊下窓・室内窓・ドアLDK洋室和室和スタイル暮らしやすい・住みやすい子供部屋玄関家事ラク内装子育て その他のリフォーム実例集【大阪市/マンションリフォーム】個室もしっかり、LDKはのびやかに。角部屋を最大限に活かす住まい大阪市 Y様邸【大阪市/マンションリフォーム】「夫婦それぞれの暮らし方」60歳からの全面リフォーム大阪市 U様邸【大阪市/マンションリフォーム】暮らしやすさと心地よさを両立したジャパンディ空間T様邸【八尾市/戸建てリフォーム】定年を迎えて向き合った「これからの住まい」T様邸 リフォーム実例集一覧へ戻る