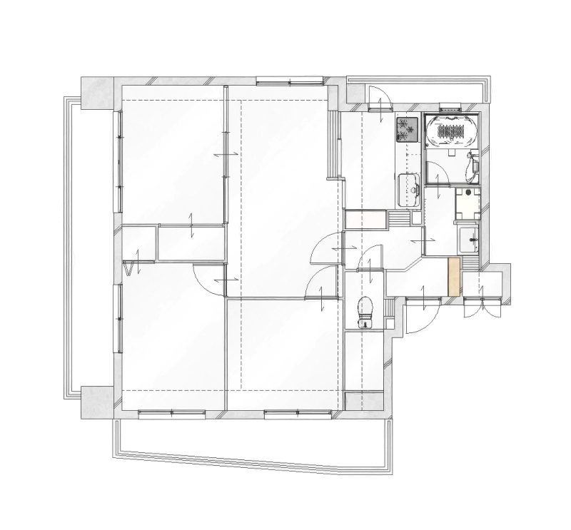
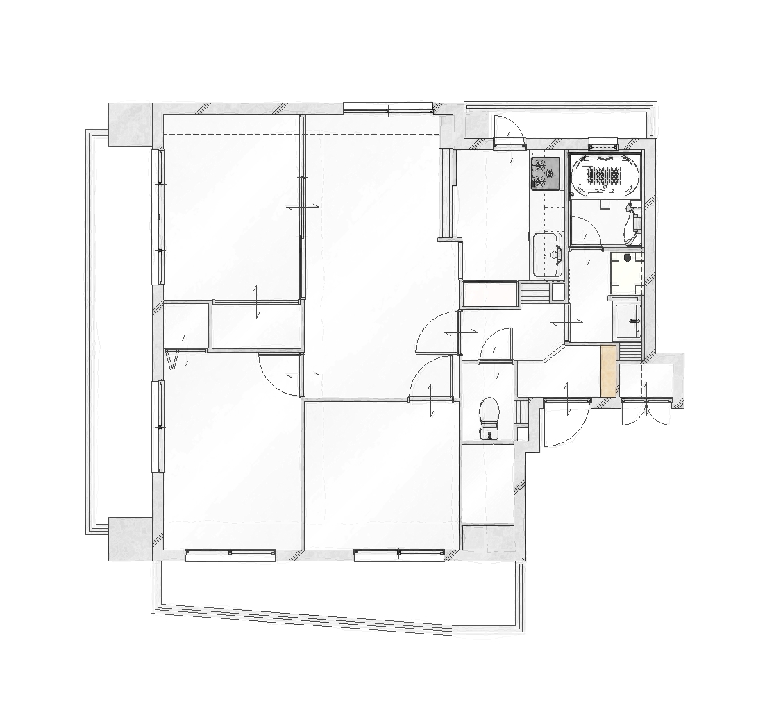
TOPリフォーム実例集【大阪市/マンションリフォーム】『デザイン・家事ラク・収納・防音 』こだわり満載!大人のお洒落空間 マンション 【大阪市/マンションリフォーム】『デザイン・家事ラク・収納・防音 』こだわり満載!大人のお洒落空間 次前 ROOM PLANBEFOREAFTER DATA 所在地 大阪市 構造 SRC造 築年数 20年 リフォーム面積 65.0㎡ 工期 2ヶ月 リフォーム費用 585万円 リフォーム部位 全面改装(キッチン以外) BEFORE COMMENT大阪市/マンションリフォーム 広い空間が欲しかったO様。3LDKだった間取りを2LDKに変更しました。特にこだわったのが収納スペース。空間を実用的に活用するためにデッドスペースは棚にするなど、家具の配置も考えてプランしました。全体のデザインも家具に合わせてセレクト。壁の濃いグレーのクロスをベースに、床も濃い色でインダストリアルなデザインにしました。リフォームが進む中で、もう少し優しい雰囲気にもしたいとのことで、ナチュラルテイストもプラスしています。 また、18歳になる愛猫が夜中に鳴くことがあるので、愛猫の寝る部屋には内窓を設置。防音効果を実感して頂いています。もともと和室だった寝室は、既存の桜の障子やふすまを活かしてデザイン。奥様一番のお気に入りの空間です。家具をアレンジしてDIYを楽しんだり、家事や収納もラクになって、大満足なリフォームになりました。 お客様の声を見る KEYWORDSカフェ風壁紙マンション洗面500〜800万50㎡以上〜70㎡未満築10年以上〜築25年未満ふたり暮らし浴室DIYトイレ防音趣味廊下照明・間接照明ヴィンテージペット窓・室内窓・ドアLDKペット洋室暮らしやすい・住みやすい和室和スタイル収納家事ラク玄関機能的内装ワークスペース間取り変更 その他のリフォーム実例集【大阪市/マンションリフォーム】個室もしっかり、LDKはのびやかに。角部屋を最大限に活かす住まい大阪市 Y様邸【大阪市/マンションリフォーム】「夫婦それぞれの暮らし方」60歳からの全面リフォーム大阪市 U様邸【大阪市/マンションリフォーム】暮らしやすさと心地よさを両立したジャパンディ空間T様邸【八尾市/戸建てリフォーム】定年を迎えて向き合った「これからの住まい」T様邸 リフォーム実例集一覧へ戻る 無料お見積もりはこちら
マンション 【大阪市/マンションリフォーム】『デザイン・家事ラク・収納・防音 』こだわり満載!大人のお洒落空間 次前 ROOM PLANBEFOREAFTER DATA 所在地 大阪市 構造 SRC造 築年数 20年 リフォーム面積 65.0㎡ 工期 2ヶ月 リフォーム費用 585万円 リフォーム部位 全面改装(キッチン以外) BEFORE COMMENT大阪市/マンションリフォーム 広い空間が欲しかったO様。3LDKだった間取りを2LDKに変更しました。特にこだわったのが収納スペース。空間を実用的に活用するためにデッドスペースは棚にするなど、家具の配置も考えてプランしました。全体のデザインも家具に合わせてセレクト。壁の濃いグレーのクロスをベースに、床も濃い色でインダストリアルなデザインにしました。リフォームが進む中で、もう少し優しい雰囲気にもしたいとのことで、ナチュラルテイストもプラスしています。 また、18歳になる愛猫が夜中に鳴くことがあるので、愛猫の寝る部屋には内窓を設置。防音効果を実感して頂いています。もともと和室だった寝室は、既存の桜の障子やふすまを活かしてデザイン。奥様一番のお気に入りの空間です。家具をアレンジしてDIYを楽しんだり、家事や収納もラクになって、大満足なリフォームになりました。 お客様の声を見る KEYWORDSカフェ風壁紙マンション洗面500〜800万50㎡以上〜70㎡未満築10年以上〜築25年未満ふたり暮らし浴室DIYトイレ防音趣味廊下照明・間接照明ヴィンテージペット窓・室内窓・ドアLDKペット洋室暮らしやすい・住みやすい和室和スタイル収納家事ラク玄関機能的内装ワークスペース間取り変更 その他のリフォーム実例集【大阪市/マンションリフォーム】個室もしっかり、LDKはのびやかに。角部屋を最大限に活かす住まい大阪市 Y様邸【大阪市/マンションリフォーム】「夫婦それぞれの暮らし方」60歳からの全面リフォーム大阪市 U様邸【大阪市/マンションリフォーム】暮らしやすさと心地よさを両立したジャパンディ空間T様邸【八尾市/戸建てリフォーム】定年を迎えて向き合った「これからの住まい」T様邸 リフォーム実例集一覧へ戻る